The Emerald - Plot 15
The Emerald - Plot 15
Station Road, Branston, Lincoln, LN4 1GZ
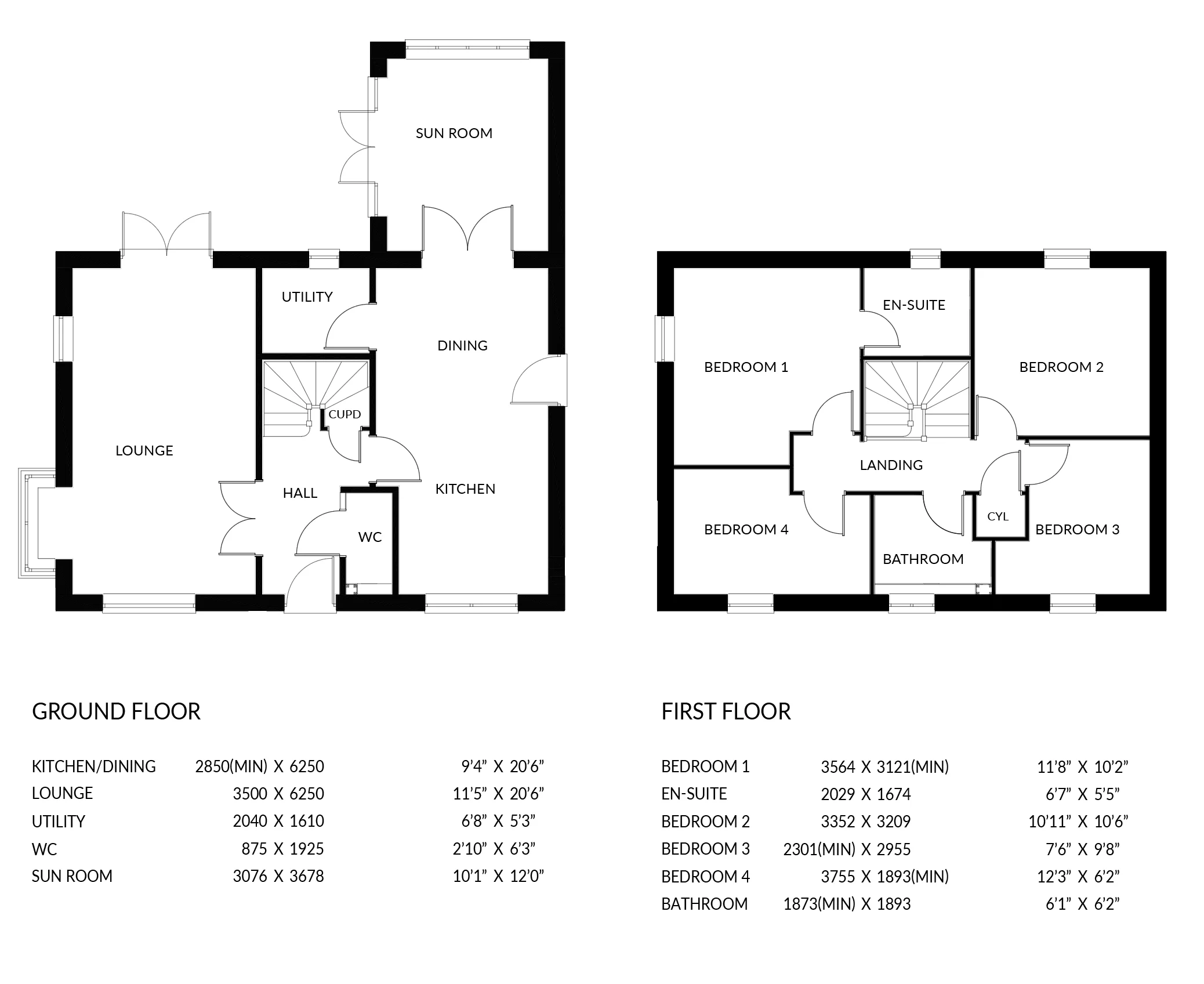
With an open plan kitchen-dining leading into a sunroom / second lounge this home really brings families together. Architect designed feature staircase leads to four equally spacious bedrooms with bedroom one having its own shower room and a separate family bathroom on the main landing.
*Please note all images, photos and drawings are representative only. Each individual home is subject to variations in design and build (please refer to the individual plot drawings for each property).Key Features
- 5% (£19,747) Gifted Deposit Included!
- Solar PV Panels
- Air source heat pump
- Underfloor heating to ground floor
- Open-plan kitchen/dining
- Spacious lounge
- Four bedrooms
- Contemporary family bathroom
- Sunroom / second lounge
- Utility room
- Brick garage
Floor Plan
Saxon Park Site Map
Whatβs Nearby
-
Branston Community Academy0.2 miles
-
Branston Junior Academy0.4 miles
-
Branston Co-op Food Store0.5 miles
-
Branston Co-op Food Pharmacy0.5 miles
-
Branston Recreation Ground0.9 miles
-
Lincoln City Centre4.5 miles
-
Branston Surgery0.5 miles
-
Dhilon's Plaice0.5 miles
Enquire about our properties for sale at Saxon Park, Branston
It is all happening in Lincoln, as we have just launched our second development this time to the South East of the city centre. Branston offers you the best of both worlds, by being surrounded by the countryside and the city centre only around 4 miles away. Not forgetting about the Lincoln (eastern) bypass which is only a short drive away making Saxon Park the ideal place to call home when commuting to Lincoln, Grimsby and beyond.
The first homes have now been released and are due to be completed towards the end of the year. These homes are in prime position located at the entrance of Saxon Park,.
The Lincoln (eastern) bypass is a short drive away (less than two miles) and Branston is therefore ideal for commuting to Lincoln, Newark, Grimsby and beyond.
The development is at the northern boundary of the village, accessed off Station Road. The site is to the west side of the road.
The village of Branston has approximately 4000 residents and is served by a pub, members club, cafes and takeaway shops.
Marketing Suite Address
Opening Hours (*Open by appointment only)
Monday: 10am β 5.00pm
Tuesday: Closed
Wednesday: Closed
Thursday: 10am β 5.00pm
Friday: 10am β 5.00pm
Saturday: 10am β 5.00pm
Sunday: Closed
Contact Us
*Please note our contact form and email addresses are not monitored outside of office hours.